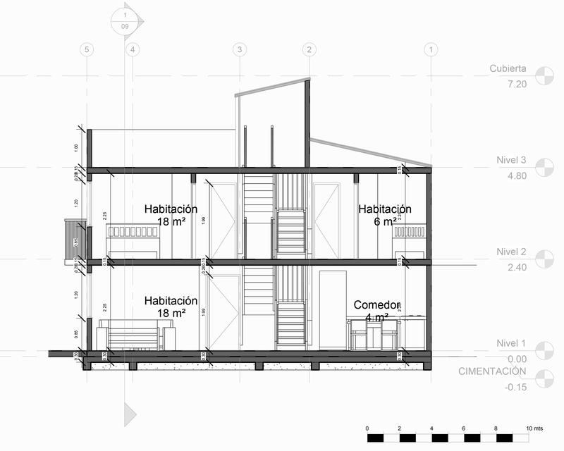
Ya cuenta con los planos y cantidades de su vivienda,
para imprimir en tamaño carta o compartir.
Podrá usarlos para cotizar, tramitar créditos, subsidios
y licencias, y construir su casa, a su medida.
Es importante que se asesore con especialistas para
garantizar una construcción estable y duradera.
Especificaciones:
area etapa 1: 39 m2
area total: 92 m2
costo etapa 1: 51 - 65 millones
costo total: 120 - 154 millones
tiempo de obra etapa 1: 6 meses
tiempo de obra total: 10 meses